Dự án Khu nhà ở tại khu phố Hòa Trung
Khu nhà ở tại khu phố Hòa Trung không chỉ đơn có vai trò là một dự án về xây dựng hay quy hoạch đất đai, mà còn được xem như là biểu trưng cho sự phát triển mạnh mẽ, kết hợp giữa tính hiện đại và tính bền vững, mang lại nhiều lợi ích cho cộng đồng và nền kinh tế địa phương. Với quy mô rộng lớn, kế hoạch rõ ràng và sự đầu tư có chiến lược, dự án này dự kiến sẽ hình thành một khu đô thị mẫu mực, cải thiện chất lượng sống, thúc đẩy sự phát triển kinh tế – xã hội và trở thành điểm nhấn trong quy hoạch đô thị của tỉnh Hà Nam. Khu nhà ở tại khu phố Hòa Trung chứa đựng nhiều tiềm năng, không chỉ thay đổi diện mạo đô thị mà còn kích thích sự phát triển kinh tế – xã hội của khu vực.
Với mục tiêu tạo dựng một cộng đồng hiện đại, an toàn và thân thiện, dự án đã huy động sự tham gia của nhiều đối tác và thực hiện các biện pháp nhằm giảm thiểu tác động tiêu cực tới môi trường. Bài viết này sẽ đi sâu vào các giải pháp thể hiện trách nhiệm của nhà đầu tư cũng như cộng đồng địa phương, đồng thời phân tích tính khả thi của các giải pháp này trong thực tế. Dự án đầu tư xây dựng Khu nhà ở và cải tạo khu dân cư tại tổ dân phố Hòa Trung, phường Tiên Nội, thị xã Duy Tiên (DT-ĐT14.22).

Thông tin về dự án Khu nhà ở tại khu phố Hòa Trung bao gồm các thông tin về chủ đầu tư, địa chỉ và phương thức liên hệ; đại diện pháp lý của chủ đầu tư; tiến trình thực hiện dự án: Chủ đầu tư là Liên danh Hợp Tiến – Hải Vượng, bao gồm Công ty TNHH Hợp Tiến và Công ty TNHH Hải Vượng. Để triển khai dự án, chủ đầu tư đã thành lập Công ty TNHH Đầu tư và Phát triển Đô thị Đức Dũng. Trụ sở chính của công ty đặt tại TDP Đạt Hưng, thị trấn Tân Thanh, huyện Thanh Liêm, tỉnh Hà Nam (hiện nay là xã Tân Thanh, tỉnh Ninh Bình).
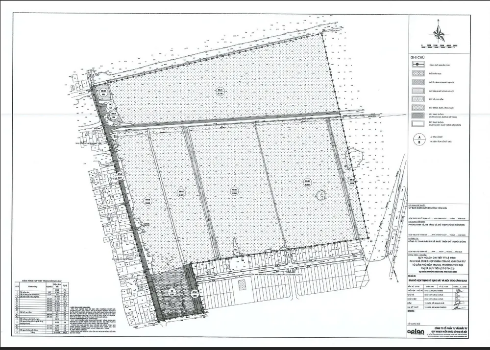
- Địa điểm thực hiện dự án tọa lạc tại phường Tiên Nội, thị xã Duy Tiên, tỉnh Hà Nam (kiện nay là phường Tiên Sơn, tỉnh Ninh Bình).
- Tổng diện tích của dự án là 112.370 m².
Các ranh giới tiếp giáp của dự án:
- Phía Bắc giáp khu vực cây xanh cách ly KCN Đồng Văn III;
- Phía Nam giáp khu dân cư hiện hữu;
- Phía Đông giáp với đường quy hoạch có bề rộng 20,5m;
- Phía Tây giáp khu dân cư tổ dân phố Hòa Trung.
Khoảng cách từ dự án đến các khu vực nhạy cảm về môi trường được xác định như sau:
- Phía Tây là khu dân cư hiện tại của tổ dân phố Hòa Trung.
- Phía Nam tiếp giáp với khu dân cư Tiên Nội.
Khoảng cách đến các công trình văn hóa và xã hội:
- Cách 100 mét về phía Tây Nam có Chùa Phúc Lâm (hay còn gọi là chùa Hòa Trung);
- Cách 260 mét về phía Đông Bắc là Chùa Ngô Thượng.
Hệ thống giao thông:
- Phía Tây và Tây Nam có tuyến đường nhựa chạy dọc theo ranh giới khu dân cư tổ dân phố Hòa Trung, tuyến đường này sẽ được chủ đầu tư sử dụng để vận chuyển nguyên vật liệu thi công cho dự án.
- Phía Nam giáp với đường bê tông hiện trạng có chiều rộng khoảng 3.50 mét. Ngoài ra, trong khu vực dự án còn có các tuyến đường đất phục vụ nông nghiệp của cư dân.
Cách dự án khoảng 600 mét về phía Đông là tuyến cao tốc Bắc – Nam. Khoảng 1.4 km về phía Tây có Quốc lộ 1A. Như vậy, vị trí của dự án rất thuận lợi cho việc kết nối với các tuyến giao thông quan trọng của khu vực. Xung quanh dự án cũng có nhiều doanh nghiệp và cửa hàng dịch vụ nhỏ từ cư dân địa phương. Dự án được triển khai nhằm cụ thể hóa kế hoạch tổng thể xây dựng Đô thị Duy Tiên, đặc biệt là quy hoạch phân khu tỷ lệ 1/2000 cho phường Tiên Nội.
Mục tiêu là phát triển một khu nhà ở đồng bộ về hạ tầng, kết hợp cải thiện khu dân cư tổ dân phố Hòa Trung hiện tại, đồng thời đảm bảo liên kết với các dự án lân cận; đáp ứng nhu cầu nhà ở và nâng cao giá trị đất đai, đóng góp vào việc tăng thu ngân sách và thúc đẩy phát triển kinh tế – xã hội của địa phương để hướng tới việc đạt tiêu chuẩn đô thị loại III.

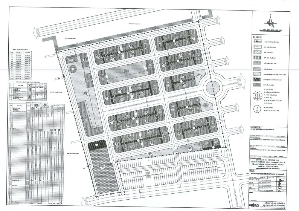
Quy mô đầu tư xây dựng nhà ở sẽ bao gồm xây dựng thô và hoàn thiện mặt ngoài cho khoảng 66 căn nhà trên các tuyến đường cảnh quan và đường cấp khu vực, với tổng diện tích khoảng 6.022 m² và chiều cao xây dựng tối đa lên tới 04 tầng.
Đối với công trình xã hội (trường mầm non), quy mô sẽ được giữ nguyên như hiện trạng. Đối với phần đất mở rộng của trường mầm non trong dự án, sau khi công tác giải phóng mặt bằng hoàn tất, sẽ được bàn giao cho cơ quan nhà nước để quản lý và phát triển theo quy định. Dự kiến quy mô dân số đạt khoảng 1.528 người.
Quy hoạch bãi đỗ xe sẽ bao gồm bãi đỗ P1 có diện tích 3.312 m² ở phía Bắc của dự án và bãi đỗ P2 chiếm 1.184 m² ở phía Nam, không chỉ đáp ứng nhu cầu đỗ xe trong khu quy hoạch mà còn thu hút nhu cầu từ các khu vực lân cận.
Về thiết kế công trình nhà ở,
- Các căn nhà liền kề sẽ cao 04 tầng, với tầng 1 có chiều cao khoảng 3,9m, tầng 2 và 3 khoảng 3,6m, và tum thang khoảng 3,0m, tổng chiều cao khoảng 14,1m, với 46 căn nhà liền kề hoàn thiện với lớp trát và sơn bên ngoài.
- Các biệt thự sẽ cao 03 tầng, với tầng 1 khoảng 3,9m, tầng 2 khoảng 3,6m, và tum thang khoảng 3,0m, tổng chiều cao sẽ khoảng 10,5m, dự kiến xây dựng 4 căn biệt thự cũng sẽ được hoàn thiện tương tự.
- Trường mầm non sẽ có độ cao tối đa 03 tầng; các phần hiện tại vẫn sử dụng sẽ giữ nguyên, trong khi diện tích xây mới tầng 1 chiều cao khoảng 3,9m, tầng 2 khoảng 3,6m, và tum thang khoảng 3,0m, tổng chiều cao cũng khoảng 10,5m.

Tiến độ thực hiện: Dự án dự kiến sẽ được triển khai từ năm 2022 đến 2027, với các giai đoạn cụ thể và tiến độ theo yêu cầu của cơ quan chức năng. Tình hình kinh tế – xã hội của phường đã đạt được nhiều thành tựu tích cực, an ninh chính trị và trật tự an toàn được duy trì tốt, giúp đời sống người dân ổn định, tạo điều kiện thuận lợi cho việc thực hiện các dự án trong khu vực.
Vị trí dự án có hệ thống giao thông thuận tiện, kết nối với Quốc lộ 1A và các tuyến đường trục kinh tế vành đai T4. Khu nhà ở tại phố Hòa Trung không chỉ đơn giản là một dự án đất tiêu chuẩn, mà còn thể hiện sự bền vững và tầm nhìn dài hạn cho một thành phố hiện đại và văn minh. Các mục tiêu rõ ràng, quy mô lớn, hệ thống hạ tầng đồng bộ và chiến lược phát triển bền vững chính là nền tảng giúp dự án này trở thành điểm nhấn trong quy hoạch đô thị tỉnh Hà Nam. Trong bối cảnh đô thị hóa nhanh chóng, dự án này cũng là biểu tượng cho sự thích nghi và phát triển bền vững, nơi mà mọi cư dân đều mong muốn sinh sống, đầu tư và phát triển. Các lợi ích về kinh tế, xã hội và môi trường đều hiện rõ, thể hiện cam kết của chính quyền và các nhà đầu tư hướng tới một tương lai tươi sáng và thịnh vượng. Chúng tôi mong muốn dự án khu phố Hoà Trung sẽ trở thành một mô hình đô thị chất lượng cao, góp phần cải thiện bộ mặt của thị xã Duy Tiên và toàn tỉnh Hà Nam, biến nơi đây thành trung tâm phát triển năng động và tiềm năng ở miền Bắc Việt Nam. Đây là bước ngoặt quan trọng nhằm đưa đô thị Hà Nam lên một mức độ phát triển bền vững mới – nơi mà mọi cộng đồng đều có cơ hội phát triển, được sống trong môi trường lý tưởng và tận hưởng những tiện ích hàng đầu của cuộc sống đô thị hiện đại. Khu nhà ở tại khu phố Hoà Trung – Được đầu tư dựa trên chiến lược phát triển bền vững của địa phương, sẽ là nơi hỗ trợ cho các nhà đầu tư thu lợi nhuận và là chốn an cư lý tưởng cho cư dân tương lai
